KAMPSTRAßE 7

Bachelorarbeit | SS 2012 | Prof. Dipl.-Ing. Johannes Schilling | münster school of architecture

Wohnen und Arbeiten in Münster

Büro - Wohnen - Stadtverdichtung

In einer Baulücke im Kreuzviertel Münsters soll ein kombiniertes Büro- und Wohngebäude entstehen.
Der Entwurf setzt sich mit der Problematik der Leerstände von Büros und deren Umnutzungen auseinander. Es wird ein Konzept entwickelt, das einen Leerstand aufgrund von zu festen vorgegeben Strukturen vermeidet und auch Umnutzungen unnötig macht, da diese bereits im flexiblen Grundkonzept vorgesehen sind. Bei diesem Grundkonzept ist von vorneherein ein kombiniertes Neben- und/oder Miteinander von Büro und Wohnen vorzusehen. Denn gerade in Münster und insbesondere stadtnah steht zu wenig Wohnraum zur Verfügung und der Vorhandene hat oft qualitative Mängel bezüglich Größe, Außenbezug und Gartenanlagen.
Statt also später eventuell leerstehende Gebäude in der freien Landschaft zu fördern soll hier eine bestehende Baulücke im Herzen Münsters geschlossen und sinnvoll für Wohnen und Arbeiten genutzt werden. Dabei stehen die Themen Flexibilität, Innovation, Nachhaltigkeit und Grünbezug im Vordergrund.

Lageplan Kreuzviertel Münster

Lageplan - Kreuzviertel Münster: Schloss, Promenade, Kreuzkirche und Innenstadt sind sehr nah

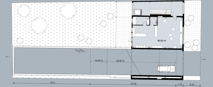
Erdgeschoss Wohn+Arbeitshaus Münster

EG

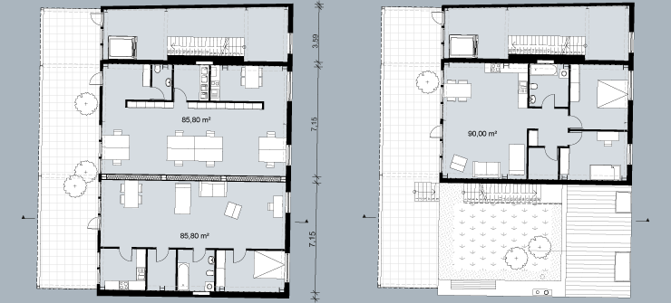
Grundrisse Wohn+Arbeitshaus Münster

2. OG - (1.-3. OG baugleich, ohne Ausbau)

4. OG

Freier Grundriss

Um eine möglichst flexible Nutzung des Gebäudes zu erreichen wird ein großer Wohnraum geschaffen der - je nach den Anforderungen der Bewohner - auch in 2 Mieteinheiten geteilt werden kann. Dieser Flexibilität muss natürlich auch die Fassade entsprechen: Fensteröffnungen wurden so gesetzt, dass nahezu alle Grundrisse möglich sind. Die Erschließung befindet sich dezentral im Norden und führt durch das Gebäude hindurch auf die Rückseite, wo die Wohnungen über vorgelagerte Balkone erschlossen werden. Garten, Balkone und Dachterrasse bieten großzügigen Außenraum, während gleichzeitig das Parkproblem durch eine tlw. unter dem Garten gelegene Garage gelöst wird.

Die Fassade orientiert sich vom Material her nicht an ihrer Umgebung (Klinker und Putzbauten), sondern kontrastiert mit ihrer Zinkfassade. Die Kubatur orientiert sich jedoch an den angrenzenden Gebäuden. Der Höhenversprung der Nachbargebäude wird aufgenommen, sodass sich aus Fußgängerperspektive ein einheitliches Höhenbild ergibt: Links kann man bis zur Traufe sehen, rechts bis zur Attika.

Schnitt Wohn+Arbeitshaus Münster

Schnitt

Ansicht Wohn+Arbeitshaus Straße

Ansicht von der Straße

Ansicht Wohn+Arbeitshaus Garten

Ansicht vom Garten

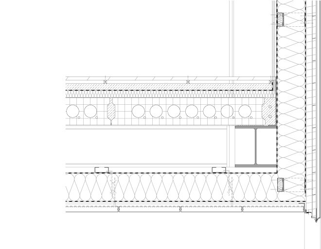
Knotenpunkt Stahlkonstruktion

Verbindung zwischen einem Balkonträger, einer Innenraumstütze und den angrenzenden Innenraumträgern über angeschweißte Bleche, Bolzenverbindungen und den Schöck Isokorb® Typ KST

Stahlskelettbau

Der gewünschte weite und hohe Raum (11x14m) wird nur durch zwei Stützen durchbrochen, welche bei Unterteilung in zwei Einheiten ganz verschwinden. Durch die hohen Spannweiten im Innenraum und kleineren im Treppenhaus, sind unterschiedliche Profile nötig. Auch auf den Balkonen, die kein Gründach zu tragen haben lastet weniger Gewicht.

Auf den Kellerwänden und der Kellerdecke (beides Ortbeton) stehen gebäudehohe Stahlstützen. Dazwischen liegen die Träger und Nebenträger, auf die dann die Betonfertigelemente als Decken kommen. Da sowohl der Balkon als auch das Treppenhaus kalt sind, müssen sie thermisch vom Resttragwerk getrennt werden. An den Knotenpunkten werden die Stützen durch angeschweißte Bleche verstärkt.

Die Fassade auf der Straßenseite (s. Details unten) besteht aus einem auf Latten aufgebrachten Winkelstehfalz in Zink. Die Durchfahrt zur Garage wird mit einer abgehängten Kassettendecke gebaut. Die Fassade zum Garten hin ist mit einem Pfosten-Riegel-System in Stahl offener gestaltet.

Detail 1 - Wohn+Arbeitshaus Münster

Detail 1: Traufpunkt - Stahlträger, Dämmung und Metallanker, Holzlattung, Winkelstehfalz Zink

Detail 2 - Wohn+Arebitshaus Münster

Detail 2: Decke der Durchfahrt - Stahlträger, Winkelstehfalzfassade, abgehängte Kassettendecke aus Aluminium