UNDERCOVER

Baukonstruktion | Team Elena Kasumova | SS 2010 | Prof. Dipl.-Ing. J. Schilling | münster school of architecture

Museum Alte Fahrt Münster

Alte Fahrt Dortmund-Ems-Kanal

Zur Geschichte des Dortmund-Ems-Kanals und zum Landschaftsraum der Ems soll ein Ausstellungsgebäude
geplant werden. Neben den Ausstellungsräumen sind weitere Nebenfunktionen wie Gastronomie, Foyer, WCs und Technik gefordert. Im Norden von Münster am Standort des alten Dortmund-Ems-Kanals gilt es einen perfekt ausgewählten Bauort zu finden.

Das Gelände des alten Kanals ist von Schichten und Reliefhaftigkeit geprägt. Dies äußert sich in verschiedenen Landschaftskomponenten wie Ems, Kanal, Wald, Wiese und Flussbett, die sich verschiedenartig überlagern, in der Höhe verspringen und sich in der Farbigkeit nuancenhaft unterscheiden. Gleichzeitig gibt es zwei sehr prägnante Richtungen, in die sich die Schichten erstrecken: Die beiden Flüsse.

Das Museum soll in der Mitte des alten Flußbettes angesiedelt werden, da dieses im Gegensatz zur restlichen Landschaft relativ eintönig ist und so die Landschaft akzentuiert und ergänzt werden kann.

Lageplan Alte Fahrt Münster

Lageplan - Alte Kanalüberführung Münster

KUBUS

Der Fülle von Schichten und Richtungen wird ein ungerichteter großer Baukörper entgegengesetzt, da dieser im Gegensatz zu einem kleinteiligeren Entwurf mit der prägnanten Landschaft konkurrieren kann ohne diese zu übertrumpfen oder selbst zu verschwinden.
Nach außen hin ist das Gebäude ein großer Kubus der sich fast frech zwischen den Schichten und Höhen positioniert und so einen Gegenpol oder Knotenpunkt bildet. Im Inneren jedoch werden die verschiedenen Richtungen der Landschaft aufgenommen. Jeder Raum orientiert sich in eine andere Richtung, die Höhen verpringen, es entstehen Übergänge. So werden die Richtungen der Schichten außen zu Richtungen der Schichten innen.

Man betritt das Gebäude auf der mittleren Ebene vom alten Flussufer aus. In der Ebene darunter, von der man direkt in das alte Flußbett gehen kann, befindet sich ein Teil der Ausstellung und der Servicebereich. Im oberen Geschoss kann man vom Ausstellungsraum auf die Dachterrasse gehen und so die gesamte Landschaft überblicken. Das Gebäude ist von einer Metallnetz-Hülle umgeben, sodass der einheitliche kubische Charakter gewahrt wird.

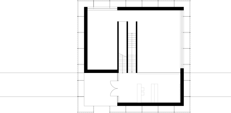
Obergeschoss des Museums Alte Fahrt Münster

+1 _ Höchste Ebene: Ausstellungsraum und Dachterrasse

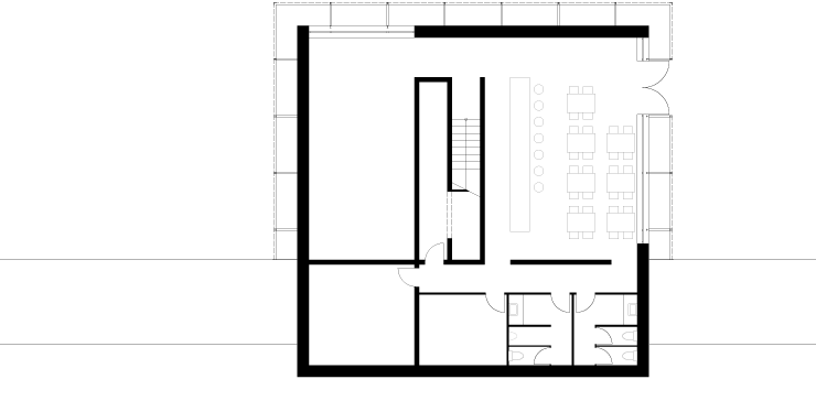
Mittleres Geschoss des Museums Alte Fahrt Münster

+0 _ Ebene des alten Flussufers: Eingang

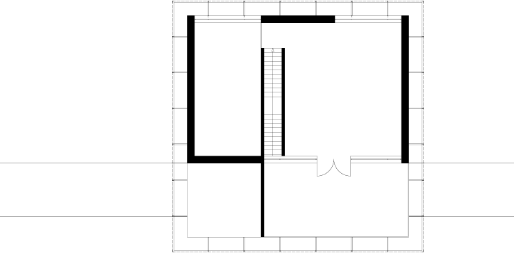
Untergeschoss des Museums Alte Fahrt Münster

-1 _ Ebene des alten Flussbettes: Café und Ausstellungsraum

Ansicht Nord-West Museum Alte Fahrt Münster

Ansicht Nord-West

Ansicht Süd-West Museum Alte Fahrt Münster

Ansicht Süd-West

Ansicht Süd-Ost Museum Alte Fahrt Münster

Ansicht Süd-Ost

Ansicht Nord-Ost Museum Alte Fahrt Münster

Ansicht Nord-Ost

Schnitt Museum Alte Fahrt Münster

Schnitt

Infraleichtbeton und Metallnetz

Das Gebäude wird in Massivbauweise in Sichtbetonqualität innen und außen gebaut. Statt tragender Wand und Wärmedämmung wird 50 cm Infra-Leichtbeton genutzt, der glasfaserbewehrt und somit wärmedämmend und tragend ist. Die Netzhülle aus kupferhaltiger Messinglegierung wird in einem Abstand von 1 m von der Außenwand mit Stahlträgern an dieser befestigt.

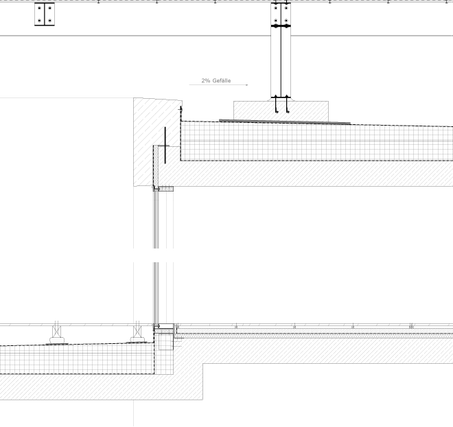
Detail 1 Museum Alte Fahrt Münster

Detail 1: Übergang Dachterrasse - Innenraum, Aufständerung des Drahtgewebes auf Flachdach, Pfosten-Riegel-Fenster

Detail 2 Museum Alte Fahrt Münster

Detail 2: Brüstung und Gefälle Dachterrasse, Aufhängung des Drahtgewebes, Auflage Betondecke auf Dämmbetonwand